Мы свяжемся с вами в ближайшее время и проконсультируем

Сделаем индивидуальный расчёт стоимости и сроков по Вашему проекту

Заполните форму

    Номер телефона

    Ваше имя


    Звоните, работаем с 9:00 до 19:00 Пн-Пт

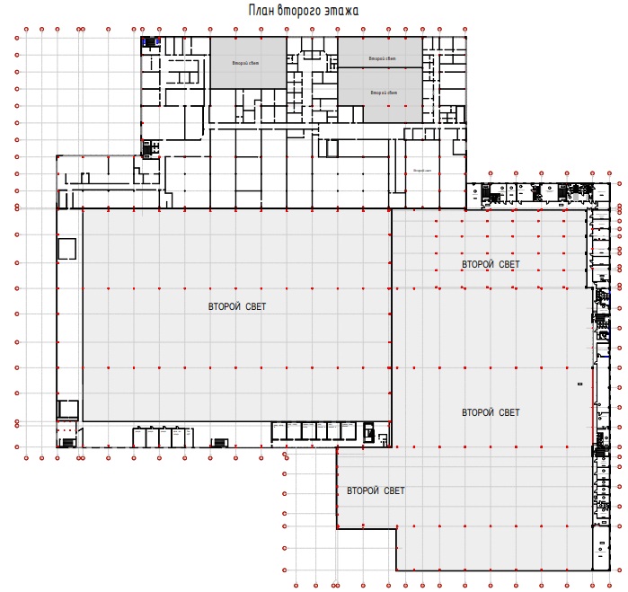
    Магазин-склад Максидом

    Котельники

    28 605,56 м²

    Фото проекта

    Поставленная задача

    Спроектировать торгово-складское помещение

    Результат

    Разработали эскизный проект для огромного по площади магазина-склада "Максидом"

    Объект включает в себя: торговый зал, склад, центр выдачи заказов, кассовая зона, комнаты для переговоров, офисы, раздевалки, мастерскую, помещения под аренду

    2 месяц

    Фото проекта

    Стать следующим проектом

    Боитесь, что появятся лишние траты и навязанные услуги? Расчитайте стоимость и сроки своего проекта

    Тип проекта:

    • Дизайн-проект
    • Проект перепланировки
    • Проект реконструкции
    • Проект капитального ремонта
    • Проектирование зданий

    Площадь участка:

    Планируемый бизнес:

    • Ресторан, кафе, бар
    • Магазин, гостиница, мини отель
    • Производство, Склад
    • ТРК, Офис
    • Другое

    Разделы проекта:

      Опишите проект

      Ваше имя

      Номер телефона

      Сдадим проект

      в оговорённые сроки

      Необычная форма участка? Жёсткие требования к вентиляции и электросетям? Ограниченная высота или нагрузка на перекрытия? Справимся в срок, независимо от условий. Если будут трудности — мы скажем прямо и найдём подходящее решение.

      Нужен аналогичный проект?